Механическое оборудование сцены
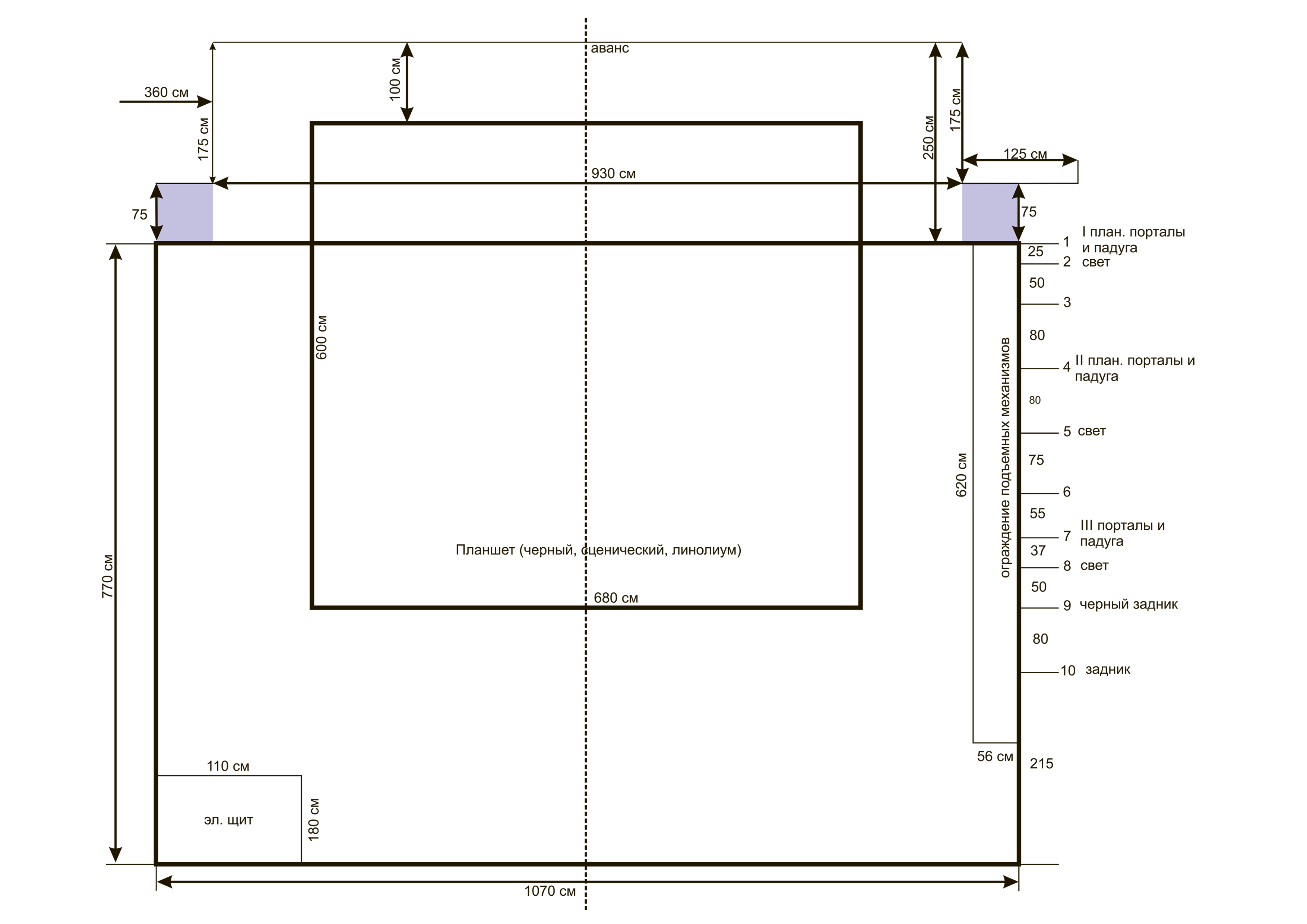
Сцена: ширина – 10,5 м; глубина – 8 м; максимальный подъем штанкета – 6,4 м
Зеркало сцены: 9,35х5,0 м
Авансцена: ширина – 9,35 м; глубина – 2,5 м
Штанкеты: 7 штук – обычные, 3 штуки – софитные, длина – 10 м, ручной привод.

Звуковое оборудование
Акустика:
Портальная – Dynacord A 118 (сабвуфер) – 4 шт.
– Dynacord A 115 (двухполосная АС) – 4 шт.
Мониторная – Dynacord AХМ 12 А – авансцена – 2 шт.
– средний план (прострелы) – 2 шт.
Сайдфилы – Peavey – 2 шт. (по 600 Вт)
Цифровой пульт:
Allen & Heath SQ – 6
Мультимедиа:
Tascam MD – 350 (минидиск)
Tascam SS – CDR 200 (USB, SD, CF)
Микрофоны:
5 подвесных микрофонов SHURE (3 плана)
3 вокальных беспроводных микрофона SHURE GLXD 2
2 вокальных беспроводных микрофона Sennheisen ew – 100 G4 E – 835
11 головных гарнитур беспроводных Sennheisen ew – 100 G4 МЕ 3 – 11
3 микрофонных стойки
Стационарный компьютер (ОС Windows 7, CD – привод)
Световое оборудование
|
Световой пульт: |
ETC iON XE |
|
Световая рубка: |
2 шт ETC Lustr 2 series (profile) 1 шт «пушка» Anhzee RGB 1 шт «пушка» imLight (profile)(Lamp) 1 шт «пушка» NightSun |
|
Правая ложа: |
4 шт imLight (profile)(Lamp) – по 2 на канале 2 шт. ПРТЛГ – по 2 на канале 1 шт Anhzee wash (голова) 1 шт Anhzee PROFILE (голова)
|
|
Левая ложа: |
аналогична правой |
|
Рампа: |
2 шт. Anhzee BAR 24 RGB 2 шт. ShowTECH BAR 24 RGBUV 2 управляемые розетки
|
|
Выносной софит |
8 шт imLight (profile)(Lamp) 4 шт ЕТС RGB (profile) 2 шт Anhzee RGB (profile) 400
|
|
1 план: |
Софиты 2 шт. Anhzee BAR 24 RGB 2 шт. ShowTECH BAR 24 RGBUV 3 шт. Anhzee PROFILE (голова) Прострелы 4 шт Anhzee RGB (profile) 400 (по 2 с каждой стороны) 10 шт Anhzee RGB (profile) 100 (по 5 с каждой стороны)
|
|
2 план: |
Софиты 2 шт. Anhzee BAR 24 RGB 2 шт. ShowTECH BAR 24 RGBUV 3 шт. Anhzee wash (голова) 3 шт ЕТС profile (Lamp) 2 шт. Luci RGBW (заливные светильники) Прострелы 2 шт Anhzee RGB (profile) 400 (по 1 с каждой стороны) 10 шт Anhzee RGB (profile) 100 (по 5 с каждой стороны) 4 шт ЕТС profile (Lamp) (по 2 с каждой стороны)
|
|
3 план: |
Софиты 4 шт. Anhzee BAR 24 RGB 6 шт. ShowTECH BAR 24 RGBUV DTS (profile) (белый светодиод) Прострелы 2 шт Anhzee RGB (profile) 100 (по 1 с каждой стороны)
|
|
Проектор |
EPSON EB 7900U |

Одежда сцены
Кулиса 1 плана: 5,5х2,7 м
Кулиса 2 плана: 5,5х2,7 м
Кулиса 3 плана: 5,5х2,7 м
Падуга 1 плана: 9,8х1,75 м
Падуга 2 плана: 9,8х1,3 м
Падуга 3 плана: 9,8х1,3 м
Задник черный бархат 5,6х7,5 м
Задник белый тканевый 5,6х7,5 м
Экран черный ПВХ 8х6 м